ZDRW電動調節蝶閥采用多層次密封的長壽命、節能型蝶閥。其結構采用三維編心原理設計,閥座采用硬軟密封兼容的多層次結構。本產品由閥體、蝶板、多層次閥座、閥桿、傳動機構等主要部件組成。被廣泛地應用到冶金、電力、石油、化工、空氣、煤氣、可燃氣體以及給排水等腐蝕性介質的管道上。
電動蝶閥概述
電動高性能調節、切斷蝶閥是采用多層次密封的長壽命、節能型蝶閥。其結構采用三維編心原理設計,閥座采用硬軟密封兼容的多層次結構,加工不錯,工藝先進。本產品由閥體、蝶板、多層次閥座、閥桿、傳動機構等主要部件組成。因此被廣泛地應用到冶金、電力、石油、化工、空氣、煤氣、可燃氣體以及給排水等腐蝕性介質的管道上。
電動蝶閥特點
本系列蝶閥采用的是三維偏心原理設計,使密封面的空間運動軌跡達到理想化,密封面相互之間無磨擦、無干涉、加之密封材料選擇得當,從而使蝶閥的密封性、耐腐蝕性、耐高溫性和耐磨性等得到了可靠的保證。其主要特點如下:
1、開啟力矩小,靈活方便,省力節能。
2、三維編心結構,使蝶板越關越緊,其密封性能可靠,達到無泄漏。
3、耐高壓、耐腐蝕、耐磨損、使用壽命長等。
電動蝶閥生產制造采用標
設計標準 | GB/T12238-1989、JB/T8527-1997、GB/T4213-2008 |
法蘭連接尺寸 | JB/T79.1(2)-94、GB/T9113.1(2)-2000 |
結構長度 | GB/T12221-2005 |
壓力試驗 | GB/T13927-1992;JB/T9092-1999 |
電動蝶閥主要技術參數
公稱通徑 | 50 | 65 | 80 | 100 | 125 | 150 | 200 | 250 | 300 | 350 | 400 | 450 | 500 | 600 | 700 | 800 | |
流量系數 (CV) | 95 | 175 | 270 | 375 | 740 | 1400 | 2100 | 3250 | 4680 | 6200 | 8100 | 11000 | 15800 | 21000 | 29000 | 38000 | |
轉角(α°) | 90° | ||||||||||||||||
工作電壓 | 220VAC、380VAC | ||||||||||||||||
工作溫度范圍℃ | -40~250 | ||||||||||||||||
輸入信號 | 4~20mADC、220VAC、24VDC | ||||||||||||||||
公稱壓力(MPa) | 1.6、4.0、6.4 | ||||||||||||||||
連接形式及標準 | 對夾式、法蘭式 | ||||||||||||||||
閥體材料 | ZG25、304、316、316L | ||||||||||||||||
閥芯材料 | 304、316、316L | ||||||||||||||||
閥座材料 | 304、316、F4 | ||||||||||||||||
流量特性 | 近似等百分比 | ||||||||||||||||
泄漏等級 | V、VI | ||||||||||||||||
電動蝶閥執行機構
3610R系列電動執行器,是以AC220單相交流電源作為驅動電源,接受來自DCS、PLC系統或調節儀表操作器的DC4~20mA、DC0~10mA或DC1~5V控制信號的全電子式執行機構,該執行機構具備動作切換功能以及開度信號功能和手動等功能。大口徑蝶閥一般采用380VAC電動執行器,國內品牌如上海澳托克,揚州電力,天津二通等;國外品牌有英國羅托克、法國伯納德、德國西博思(西門子)等。
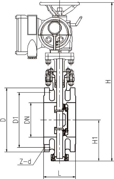
電動蝶閥外形尺寸及重量

單位:mm
公稱通徑 | 結構長度L | 外形尺寸 | 連接尺寸PN1.6MPa | 參考重量 | ||||
DN | 法蘭式 | 對夾式 | H | H | D | D1 | Z-d | (kg) |
50 | 108 | 43 | 112 | 530 | 165 | 125 | 4-18 | 19 |
65 | 112 | 46 | 115 | 530 | 185 | 145 | 4-18 | 22 |
80 | 114 | 49 | 120 | 565 | 200 | 160 | 8-18 | 25 |
100 | 127 | 56 | 138 | 600 | 220 | 180 | 8-18 | 28 |
125 | 140 | 64 | 164 | 640 | 250 | 210 | 8-18 | 43 |
150 | 140 | 70 | 185 | 705 | 285 | 240 | 8-22 | 50 |
200 | 152 | 71 | 200 | 775 | 340 | 295 | 12-22 | 64 |
250 | 165 | 76 | 243 | 945 | 405 | 355 | 12-26 | 99 |
300 | 178 | 83 | 250 | 1070 | 160 | 410 | 12-26 | 130 |
350 | 190 | 92 | 280 | 1140 | 520 | 470 | 16-26 | 188 |
400 | 216 | 102 | 305 | 1210 | 580 | 525 | 16-30 | 270 |
450 | 222 | 114 | 350 | 1335 | 640 | 585 | 20-30 | 350 |
500 | 229 | 127 | 380 | 1415 | 715 | 650 | 20-33 | 375 |
600 | 267 | 154 | 445 | 1605 | 840 | 770 | 20-36 | 560 |
700 | 292 | 165 | 480 | 1844 | 910 | 840 | 24-36 | 610 |
800 | 318 | 190 | 530 | 2040 | 1025 | 950 | 24-39 | 880 |
電動蝶閥訂貨須知
訂貨時請填寫《規格書》或注明以下內容:
一、若訂貨前還未選定型號,請向我們提供您的使用參數
1、公稱通徑、額定流量系數Kv
2、流體性質(包括公稱壓力、溫度、粘度或酸堿性)
3、閥作用形式(電-關式或電-開式)
4、流量特性
5、閥前、閥后壓力
6、閥體、閥芯材料
7、輸入信號
8、是否帶附件,說明附件型號,以便我們的為您正確選型。
二、特殊要求
1、特殊檢驗
2、完全去油、去水處理;
3、禁銅處理;
4、特殊接口、配管;
5、真空條件下使用;
6、指定涂層顏色
7、特殊介質(氧氣、氯氣、氫氣);
8、使用不銹鋼連接件;
三、若已經由設計單位選定我公司的產品型號,請按型號直接向我公司銷售部訂購.
四、當使用的場合非常重要或管路比較復雜時,請您盡量提供設計圖紙和詳細參數,由我們的廠家為您審核把關.






?公司郵箱登入
?
浙公網安備33032402002441號